Дизайн двухкомнатной квартиры в ЖК Престиж Холл в современном стиле. Интерьер был разработан специально для сдачи квартиру в аренду. Основные задачи - разработать практичное, удобное планировочное решение, выбрать стиль и цветовую гамму.
Дизайн квартиры в ЖК «Престиж холл»
Содержание
- Дизайн (16 фото)
- Схемы (2 фото)
- Результат (18 фото)
- Описание
- Стили в которых выполнен ремонт
- Похожие работы
Фото дизайна интерьера (16 фото)
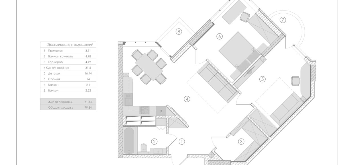
Планы и чертежы (2 фото)
Фото готового ремонта (18 фото)
Описание
Стили в которых выполнен ремонт
Вам понравились наши работы?
Оставьте ваши контакты и мы с вами свяжемся